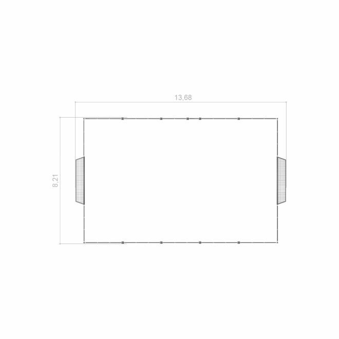
Highbury - Vis ovenfra
Katalognummer: 11565